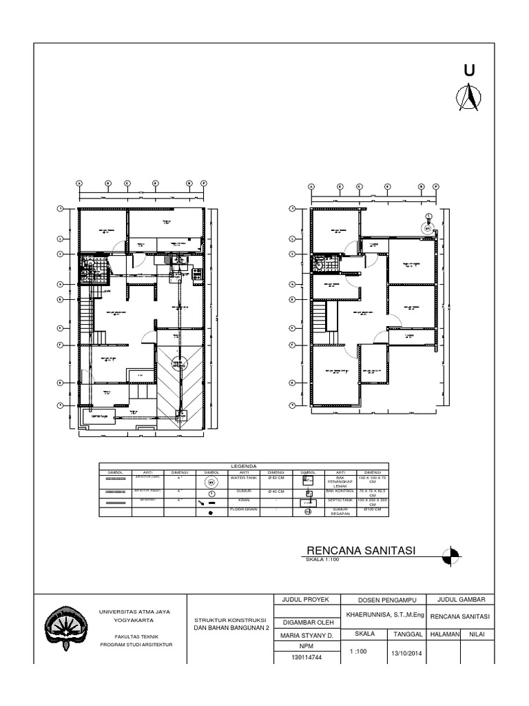
Denah Sanitasi Air Bersih Dan Air Kotor. Denah instalasi air kotor lantai 1. dwg : Berikut merupakan gambar denah layout gambar denah instalasi air kotor lantai 1. Segera kunjungi website jasa desain rumah indo design center. Tak hanya file gambar jpg diatas yang akan anda dapatkan.
Denah Instalasi Air Bersih dan Air Kotor dwg
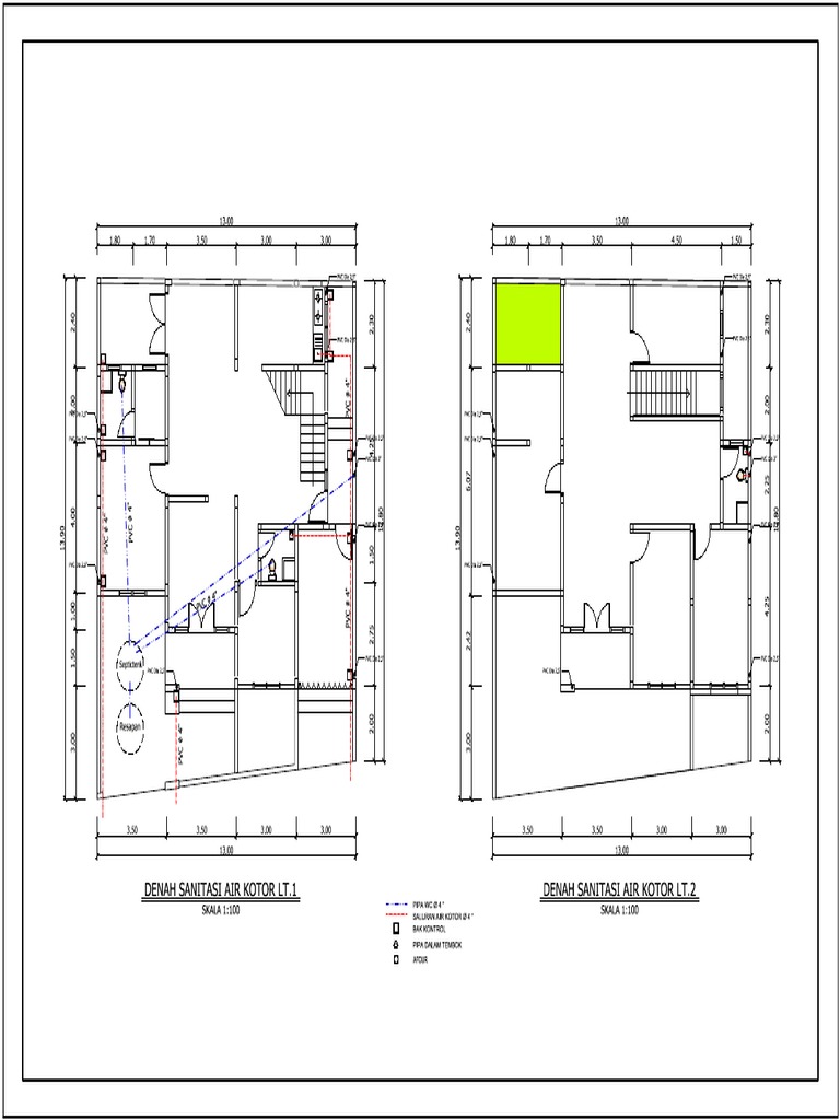
Memasang instalasi saluran pipa air bersih untuk rumah adalah bagian yang tidak dapat ditinggalkan karena merupakan pelengkap atau infra struktur wajib sebagai. Download now 1 menggambar instalasi sistem sanitasi dan plambing bangunan gambar. Download now 024 denah instalasi air kotor lantai 1 rumah kos 4 lantai.
Download now 023 denah rencana instalasi air kotor lantai 1 rumah 2 lantai. Download now sistem sanitasi. Gambar kerja pemipaan air bersih dan air kotor file dwg utilitas bangunan merupakan kelengkapan dari suatu bangunan gedung agar bangunan gedung tersebut dapat berfungsi secara optimal.
Indo design center juga memberikan file dwg yang dapat anda download secara mudah dibawah ini. Denah rencana instalasi air bersih lantai 1 1:100 36. Denah rencana instalasi air bersih lantai 2. Download now 1 menggambar instalasi sistem sanitasi dan plambing bangunan gambar.
 |
| Source: indodesigncenter.com |
 |
| Source: scribd.com |
 |
| Source: indodesigncenter.com |
 |
| Source: indodesigncenter.com |
 |
| Source: id.scribd.com |
 |
| Source: PDFCOFFEE.COM |
 |
| Source: archify.com |
 |
| Source: id.scribd.com |
 |
| Source: slideplayer.info |
Salah satu bagian dari utilitas bangunan adalah plumbing. Plumbing adalah seni, teknologi perpipaan dan peralatan untuk menyediakan air bersih ke tempat yang. Indie architect punya banyak referensi desain untuk tampak depan/ fasad. Juni 16, 2010 in dunia sipil. Denah Sanitasi Air Bersih Dan Air Kotor.
CARA GAMBAR DENAH SANITASI AIR BERSIH AIR KOTOR DI AUTOCAD
CARA GAMBAR DENAH SANITASI AIR BERSIH AIR KOTOR DI AUTOCAD Halloo tmen2...buat kamu yg pengen belajar bikin denah sanitasi air bersih dan air kotor yang mudah, berikut videonya. semoga bermanfaat.. copy file chat aja : Email : shindaones@gmail.com Instagram : onesteknik
Tutorial Denah air bersih dan kotor
Vidio Tutorial Gambar Denah Atap Kuda-Kuda AutoCad oleh Imelda Averina Teknik Sipil UPJ Angkatan 2021
Denah Sanitasi Air Bersih Dan Air Kotor. 018. denah instalasi air kotor lantai 2. Sumber air bersih diambil dari sumber air tanah berupa sumur dalam (deep well). Denah instalasi air kotor. Berikut ini merupakan instalasi air kotor gambar kerja rumah kost : Gambar denah instalasi air.